THI CÔNG, LẮP ĐẶT BẾP NHÀ HÀNG THÁI NAM PLÀ
Là một nhà hàng Thái nổi tiếng của nhà thiết kế Lý Quí Khánh. Dưới sự dẫn dắt của đội ngũ đầu bếp đầy kinh nghiệm và Lý Quý Khánh, Nạm Plà - Thai Food mang đến một trải nghiệm ẩm thực mới xứ chùa Vàng cho người sành ăn. Nhà hàng chuyên về các món Thái nổi bật phải kể đến là Pad Thai, gỏi đu đủ ba khía, cà-ri xanh, cá hấp sốt Thái… Ngoài ra không gian quán decor rất đẹp, sáng, rất thích hợp để chụp hình sống ảo.
Địa chỉ quán ngon Sài Gòn – Nạm Plà: Tầng 3, 42 Phan Bội Châu, Q. 1, TP. HCM.

Là ngườj có gout thẩm mỹ cao, Lý Quí Khánh đã tự mình chọn tận tay từng chiếc bàn, bộ ghế, chén dĩa.... hay đến cả cánh chuồn chuồn gỗ trang trí trên ống cắm muỗng, đũa cũng được NTK chăm chút. Menu với đủ các món ăn đặc trưng như pad Thái, gỏi cá trê hay heo nướng kiểu Thái... đến các món khá lạ, bắt mắt: Cá nhảy múa... tất cả đều được chế biến bởi đầu bếp nước bạn, được Lý Quí Khánh thử trước khi đồng ý đưa vào thực đơn nhằm mang lại trải nghiệm tuyệt vời cho thực khách.

Khai trương lại vào ngày 29/11, nhà hàng Thái Nạm Plà với không gian sang trọng, thức ăn ngon cùng giá thành phải chăng hứa hẹn là nơi phù hợp để chiêu đãi bạn bè, gặp mặt đối tác, vui vẻ cùng gia đình hay đơn giản là tự thưởng cho bản thân những món ăn đậm chất Thái thật ngon sau một ngày làm việc vất vả.

Inox Kiến Vương rất tự hào khi được hợp tác với chủ đầu tư Nhà Hàng Thái Nampla và trở thành nhà thầu chính trong khâu tư vấn thiết kế, cung cấp trọn gói thiết bị Inox bếp nhà hàng cho thực khách những bữa ăn ngon và những buổi gặp mặt hẹn hò rất ý nghĩa .

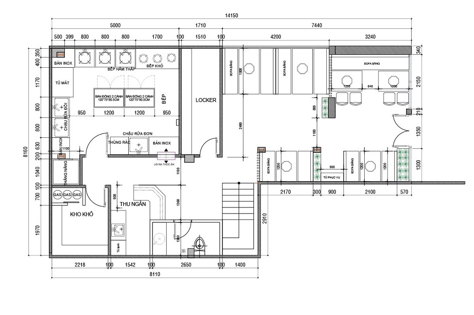
Mặt bằng bố trí trang thiết bị bếp nhà hàng Nampla



Khu bếp chính được đội ngũ kỹ thuật Inox Kiến Vương tư vấn thiết kế và cung cấp hoàn thiện theo tiến độ dự án và phục vụ đúng công suất cần sử dụng của các đầu bếp tại đây.
Liên hệ ngay với Inox Kiến Vương để nhận được sự tư vấn tốt nhất.
————————————————————————————————–
CÔNG TY CỔ PHẦN ĐẦU TƯ SẢN XUẤT THƯƠNG MẠI KIẾN VƯƠNG
HOTLINE : 0932101285-0932747485 Mr Thống
Xưởng sản xuất: Đường Số 25 An Phú Đông - P. An Phú Đông - Q.12 - TP.HCM
Office: Số 4 - Đường số 6 - Khu Phố 5 - P. Hiệp Bình Chánh - Q. Thủ Đức - TP.HCM
Website: http://bepkienvuong.com
Copyright © 2020 kienvuongco.com. All Right Reserved